Gólfhiti - Reynslusögur, með eða á móti?
-
Klemmi
Höfundur - Stjórnandi
- Póstar: 4250
- Skráði sig: Fim 10. Apr 2003 12:16
- Reputation: 1441
- Staða: Ótengdur
Gólfhiti - Reynslusögur, með eða á móti?
Sælir félagar,
er að íhuga að skipta um gólfefni á heimilinu, og fór þá að velta fyrir mér hvort ég ætti að nýta tækifærið og setja hitalagnir í gólfið til að hafa möguleikann á því að fjarlægja ofnana.
Langaði því að spyrja hvort einhverjir hér hefðu reynslusögur af hita í gólfi, og hvort það sé ráðlagt og raunhæft að losa sig við alla ofnana eða ekki?
Sumir segja að hitareikningurinn lækki, er eitthvað til í því?
Aðrir segja að loftið verði þurrara með gólfhita, er það rétt?
Konan hefur áhyggjur af því að það verði "of jafn" hiti um allt hús, þ.e. hún vill geta fírað upp ofni í einu herbergi þegar henni er kalt, en það er víst ekki hlaupið að því með gólfhita.
Vandamálið sem ég vonast til að leysa er annars vegar að tveir stærstu ofnarnir eru á stöðum þar sem við erum með sófa fyrir, og hins vegar að rýmið er oft lengi að hitna og hitnar ójafnt þegar kólnað hefur í húsinu... ekki stór issue svo sem, en líklega rétti tíminn til að spá í þessu, þ.e. á sama tíma og gólfefni er tekið í gegn.
Bestu kveðjur,
Klemmi
er að íhuga að skipta um gólfefni á heimilinu, og fór þá að velta fyrir mér hvort ég ætti að nýta tækifærið og setja hitalagnir í gólfið til að hafa möguleikann á því að fjarlægja ofnana.
Langaði því að spyrja hvort einhverjir hér hefðu reynslusögur af hita í gólfi, og hvort það sé ráðlagt og raunhæft að losa sig við alla ofnana eða ekki?
Sumir segja að hitareikningurinn lækki, er eitthvað til í því?
Aðrir segja að loftið verði þurrara með gólfhita, er það rétt?
Konan hefur áhyggjur af því að það verði "of jafn" hiti um allt hús, þ.e. hún vill geta fírað upp ofni í einu herbergi þegar henni er kalt, en það er víst ekki hlaupið að því með gólfhita.
Vandamálið sem ég vonast til að leysa er annars vegar að tveir stærstu ofnarnir eru á stöðum þar sem við erum með sófa fyrir, og hins vegar að rýmið er oft lengi að hitna og hitnar ójafnt þegar kólnað hefur í húsinu... ekki stór issue svo sem, en líklega rétti tíminn til að spá í þessu, þ.e. á sama tíma og gólfefni er tekið í gegn.
Bestu kveðjur,
Klemmi
Starfsmaður Tölvutækni.is
-
GullMoli
- Vaktari
- Póstar: 2521
- Skráði sig: Lau 20. Maí 2006 22:05
- Reputation: 242
- Staðsetning: NGC 3314.
- Staða: Ótengdur
Re: Gólfhiti - Reynslusögur, með eða á móti?
Ég hef ekki neitt vit á þessu en þetta væru mínar pælingar:
Hversvegna ekki að hafa gólfhita í sameiginlegum rýmum og ofna í svefnherbergjum/skrifstofu? Þá geturðu auðveldlega hitað/kælt herbergin en ert með notalegan gólfhita annarsstaðar.
Myndi mögulega hafa í huga að ef þetta eru rými með stórum gluggum sem snúa í suður þá getur tekið lengri tíma fyrir gólfið að kólna ef sólin hitar rýmið mikið upp, og svo sömuleiðis hitna aftur þegar sólin er farin og rýmið kólnar.
Hversvegna ekki að hafa gólfhita í sameiginlegum rýmum og ofna í svefnherbergjum/skrifstofu? Þá geturðu auðveldlega hitað/kælt herbergin en ert með notalegan gólfhita annarsstaðar.
Myndi mögulega hafa í huga að ef þetta eru rými með stórum gluggum sem snúa í suður þá getur tekið lengri tíma fyrir gólfið að kólna ef sólin hitar rýmið mikið upp, og svo sömuleiðis hitna aftur þegar sólin er farin og rýmið kólnar.
Síðast breytt af GullMoli á Þri 04. Jan 2022 07:43, breytt samtals 1 sinni.
Main -> || Windows 11 || Ryzen 5600x || Asus ROG B550i || 32GB DDR4 3600 || RTX 5070ti || CM 750W SFX || Lian Li TU-150 || 34" IPS 3440x1440 180Hz ||
NAS -> || Truenas Scale || i7 8700 || 64GB DDR4 2666 || 2x 12 TB ||
"It's a magical world, Hobbes, Ol' Buddy... let's go exploring!"
NAS -> || Truenas Scale || i7 8700 || 64GB DDR4 2666 || 2x 12 TB ||
"It's a magical world, Hobbes, Ol' Buddy... let's go exploring!"
-
Jón Ragnar
- 1+1=10
- Póstar: 1107
- Skráði sig: Lau 06. Des 2008 12:28
- Reputation: 226
- Staðsetning: ::1
- Staða: Ótengdur
Re: Gólfhiti - Reynslusögur, með eða á móti?
Flisalagði andyrið hjá mér. Sé mest eftir að hafa ekki lagt fyrir gólfhita
CCNA Collaboration
CCNA Voice
CCNA Video
-
ZoRzEr
- /dev/null
- Póstar: 1409
- Skráði sig: Þri 28. Apr 2009 12:11
- Reputation: 43
- Staðsetning: Reykjavík
- Staða: Ótengdur
Re: Gólfhiti - Reynslusögur, með eða á móti?
Ég hef verið með gólfhita núna á öllum rýmum sl. 2 ár. Ég er mjög sáttur við þægindin og að vera laus við ofna af veggjum. Er reyndar með mjög stórt eldhús og alrými þannig það er einn stór ofn bakvið sófann sem ég hef aldrei notað, kveiki á honum af og til bara til að láta vatn flæða í gegnum hann.
Er með þetta svæðisskipt í stofu, eldhús og borðstofu, sitt hvort baðherbergið og svo svefnherbergin. Hitastilla á veggjum og ég krukka litið í þessu á veturna. Stilli þetta fyrir veturinn og læt vanalega í friði. Stundum hækka ég hita í svefnherbergjum ef það er mjög kalt úti en annars læt ég þetta vera.
Hitinn er mjög jafn í allri íbúðinni. Mjög notalegt að vakna að morgni, fá sér kaffibolla og standa við gluggann og horfa á storminn úti.
Nokkrir punktar:
* Tekur lengri tíma að hitna, þarf að hugsa með lengri fyrirvara hvort eigi að hækka eða lækka hita. Getur verið smá fínstilling þegar sólin hækkar á lofti og hitar rýmið skyndilega, getur orðið mjög heitt á stuttum tíma og svo jafnvel frost á nóttu. Það er tímabil í kringum apríl - maí þar sem hitastillarnir eru alltaf að breyta hitanum þar sem sólin er hærra á lofti en það er ekkert endilega orðið hlýtt úti. Eilíf barátta við konuna að hafa nógu heitt.
* Það getur heyrst í dælunni þegar hún er að auka flæðið, truflar mig ekkert en konan tekur eftir því. Fer auðvitað eftir því hvar hún er staðsett.
* Mér finnst þurrara loftið. Fæturnir á mér er þurrir og ég þarf að setja fótakrem á mig sem ég hef aldrei þurft að gera. Sama með konun.
* Hentar einstaklega vel yngri börnum.
* Minni hreyfing á ryki. Rykið sest frekar í stað þess að fara á hreyfingu þegar ofn fer á fullt.
Allt í allt er ég mjög sáttur. Einstaklega þægileg leið til að hita íbúðina. Ég er með varmaskipti (upphitað kalt vatn) þannig ég nota ekki heitt vatn frá hitaveitu (nema snjóbræðslu). Rafmagnsreikningurinn er aðeins hærri en vatnsreikningur lægri.
Er með þetta svæðisskipt í stofu, eldhús og borðstofu, sitt hvort baðherbergið og svo svefnherbergin. Hitastilla á veggjum og ég krukka litið í þessu á veturna. Stilli þetta fyrir veturinn og læt vanalega í friði. Stundum hækka ég hita í svefnherbergjum ef það er mjög kalt úti en annars læt ég þetta vera.
Hitinn er mjög jafn í allri íbúðinni. Mjög notalegt að vakna að morgni, fá sér kaffibolla og standa við gluggann og horfa á storminn úti.
Nokkrir punktar:
* Tekur lengri tíma að hitna, þarf að hugsa með lengri fyrirvara hvort eigi að hækka eða lækka hita. Getur verið smá fínstilling þegar sólin hækkar á lofti og hitar rýmið skyndilega, getur orðið mjög heitt á stuttum tíma og svo jafnvel frost á nóttu. Það er tímabil í kringum apríl - maí þar sem hitastillarnir eru alltaf að breyta hitanum þar sem sólin er hærra á lofti en það er ekkert endilega orðið hlýtt úti. Eilíf barátta við konuna að hafa nógu heitt.
* Það getur heyrst í dælunni þegar hún er að auka flæðið, truflar mig ekkert en konan tekur eftir því. Fer auðvitað eftir því hvar hún er staðsett.
* Mér finnst þurrara loftið. Fæturnir á mér er þurrir og ég þarf að setja fótakrem á mig sem ég hef aldrei þurft að gera. Sama með konun.
* Hentar einstaklega vel yngri börnum.
* Minni hreyfing á ryki. Rykið sest frekar í stað þess að fara á hreyfingu þegar ofn fer á fullt.
Allt í allt er ég mjög sáttur. Einstaklega þægileg leið til að hita íbúðina. Ég er með varmaskipti (upphitað kalt vatn) þannig ég nota ekki heitt vatn frá hitaveitu (nema snjóbræðslu). Rafmagnsreikningurinn er aðeins hærri en vatnsreikningur lægri.
13700K | Asus Z790 Prime| 32GB DDR5 | Zotac 4080 | 2TB 960 Pro m.2 | Corsair AX1200i | Fractal North | LG 34GN850-B
Synology DS1817+ | 20TB
USG | US-8-60W | nanoHD | Flex Mini
Synology DS1817+ | 20TB
USG | US-8-60W | nanoHD | Flex Mini
Re: Gólfhiti - Reynslusögur, með eða á móti?
Ef þú ætlar að vera með mikið af parketi úr timbri, þá getur það verið erfiðara að hita með gólfhita vegna þess að það verður að passa að hitastig vatnsins sé ekki of hátt þ.a. það verpist. Einnig leiðir það hitann verr í gegnum sig (einangrar rýmið frá hitanum).
Annað sem er vert að hafa í huga er að ef þú ert með mikið af stórum gluggum, þá geturðu lent meira í því að þeir "gráti" með gólfhita, þ.s. það myndast ekki hreyfing á loftið í kringum gluggana þar sem ofn væri undir öðrum kringumstæðum undir þeim. Þar sem hitinn er jafnari og út um allt rými, þá er engin sérstök hreyfing í kringum gluggana og svæðið þar í kring getur orðið mun kaldara en ella. Því gæti borgað sig að halda ofnum nærri stórum gluggum, því þó að hitastigið þar sem hitaneminn er sé í fínu lagi geta myndast kaldir pollar.
Svo er, eins og ZoRzEr kemur inn á, lengri tími sem þarf til að breyta hitastigi í aðra hvora áttina. Þú getur fengið þér snjalla stýringu til að hjálpa til við þetta (predictive heating), en þá ertu með hitamæli úti sem bregst við snöggum hitabreytingum og byrjar þá að hita áður en það verður kalt inni í húsi eða hættir að hita ef það hitnar snögglega.
Að þessu sögðu, þá myndi ég alltaf taka gólfhita fram yfir ofna, þar sem mér þykir bara svo ótrúlega þægilegt að vera alltaf með hlýjar tær.
Annað sem er vert að hafa í huga er að ef þú ert með mikið af stórum gluggum, þá geturðu lent meira í því að þeir "gráti" með gólfhita, þ.s. það myndast ekki hreyfing á loftið í kringum gluggana þar sem ofn væri undir öðrum kringumstæðum undir þeim. Þar sem hitinn er jafnari og út um allt rými, þá er engin sérstök hreyfing í kringum gluggana og svæðið þar í kring getur orðið mun kaldara en ella. Því gæti borgað sig að halda ofnum nærri stórum gluggum, því þó að hitastigið þar sem hitaneminn er sé í fínu lagi geta myndast kaldir pollar.
Svo er, eins og ZoRzEr kemur inn á, lengri tími sem þarf til að breyta hitastigi í aðra hvora áttina. Þú getur fengið þér snjalla stýringu til að hjálpa til við þetta (predictive heating), en þá ertu með hitamæli úti sem bregst við snöggum hitabreytingum og byrjar þá að hita áður en það verður kalt inni í húsi eða hættir að hita ef það hitnar snögglega.
Að þessu sögðu, þá myndi ég alltaf taka gólfhita fram yfir ofna, þar sem mér þykir bara svo ótrúlega þægilegt að vera alltaf með hlýjar tær.
-
CendenZ
- Stjórnandi
- Póstar: 2925
- Skráði sig: Fös 04. Apr 2003 08:54
- Reputation: 228
- Staðsetning: Á þessu spjalli
- Staða: Ótengdur
Re: Gólfhiti - Reynslusögur, með eða á móti?
Ég fékk ráðleggingar hjá einhverju fyrirtæki sem leggur gólfhita,
eitt sem kom mér verulega á óvart er að hann sagði að þeir væru hættir að fjarlægja ofna, nema við allra bestu aðstæðu í stofunni! Þannig allir ofnar enn í svefniherbergjum, forstofu, baði og þvottahúsi.... Ég hélt að með gólfhita þá væri ég að losna við þá, en nei það er ekki raunin. Ástæðan er eitthvað útaf raka í gluggum. Semsagt hitinn í gólfinu væru auka þægindi, ekki til að losna við ofna.
Ég nefnilega ætla að skipta um gólfefni og ofna sem er 30 ára gamalt þannig ég veit hvar þú ert staddur
Hvaða gólfefni verður fyrir valinu, búinn að finna það ? Ég er mest spenntastur fyrir HydroCork vínilkork frá Þ Þorgríms, setti það í eitt barnaherbergið sem prufu þegar við fluttum og þetta er svaðalega gott efni, hljóðeinangrandi líka, maður finnur/skynjar hvað það drekkur í sig hljóð
eitt sem kom mér verulega á óvart er að hann sagði að þeir væru hættir að fjarlægja ofna, nema við allra bestu aðstæðu í stofunni! Þannig allir ofnar enn í svefniherbergjum, forstofu, baði og þvottahúsi.... Ég hélt að með gólfhita þá væri ég að losna við þá, en nei það er ekki raunin. Ástæðan er eitthvað útaf raka í gluggum. Semsagt hitinn í gólfinu væru auka þægindi, ekki til að losna við ofna.
Ég nefnilega ætla að skipta um gólfefni og ofna sem er 30 ára gamalt þannig ég veit hvar þú ert staddur
Hvaða gólfefni verður fyrir valinu, búinn að finna það ? Ég er mest spenntastur fyrir HydroCork vínilkork frá Þ Þorgríms, setti það í eitt barnaherbergið sem prufu þegar við fluttum og þetta er svaðalega gott efni, hljóðeinangrandi líka, maður finnur/skynjar hvað það drekkur í sig hljóð
Re: Gólfhiti - Reynslusögur, með eða á móti?
CendenZ skrifaði:Ég fékk ráðleggingar hjá einhverju fyrirtæki sem leggur gólfhita,
eitt sem kom mér verulega á óvart er að hann sagði að þeir væru hættir að fjarlægja ofna, nema við allra bestu aðstæðu í stofunni! Þannig allir ofnar enn í svefniherbergjum, forstofu, baði og þvottahúsi.... Ég hélt að með gólfhita þá væri ég að losna við þá, en nei það er ekki raunin. Ástæðan er eitthvað útaf raka í gluggum. Semsagt hitinn í gólfinu væru auka þægindi, ekki til að losna við ofna.
Akkúrat. Þetta sleppur yfirleitt til hjá mér, en ef það kólnar hratt, þá er allt morandi í raka hjá mér í gluggum.
-
ZoRzEr
- /dev/null
- Póstar: 1409
- Skráði sig: Þri 28. Apr 2009 12:11
- Reputation: 43
- Staðsetning: Reykjavík
- Staða: Ótengdur
Re: Gólfhiti - Reynslusögur, með eða á móti?
CendenZ skrifaði:Ég fékk ráðleggingar hjá einhverju fyrirtæki sem leggur gólfhita,
eitt sem kom mér verulega á óvart er að hann sagði að þeir væru hættir að fjarlægja ofna, nema við allra bestu aðstæðu í stofunni! Þannig allir ofnar enn í svefniherbergjum, forstofu, baði og þvottahúsi.... Ég hélt að með gólfhita þá væri ég að losna við þá, en nei það er ekki raunin. Ástæðan er eitthvað útaf raka í gluggum. Semsagt hitinn í gólfinu væru auka þægindi, ekki til að losna við ofna.
Ég nefnilega ætla að skipta um gólfefni og ofna sem er 30 ára gamalt þannig ég veit hvar þú ert staddur![]()
Hvaða gólfefni verður fyrir valinu, búinn að finna það ? Ég er mest spenntastur fyrir HydroCork vínilkork frá Þ Þorgríms, setti það í eitt barnaherbergið sem prufu þegar við fluttum og þetta er svaðalega gott efni, hljóðeinangrandi líka, maður finnur/skynjar hvað það drekkur í sig hljóð
Sammála með HydroCork. Svakalega gott gólfefni sem einangrar vel og er hlýtt. Frábært undirlagið frá þeim líka, úr sama efni. Setti það niður hjá foreldrum mínum í nýrri íbúð og í bústaðinn. Reynst mjög vel.
Er sjálfur með engineered hardwood frá Meister (keypt Í Parka Kópavogi). Límt niður með þykku undirlagi og það er ekkert vandamál með hitun hér. Vatnið fer sjaldnast yfir 40°c um hávetur gegnum lagnirnar.
Hef ekki orðið var við raka í gluggum. Er með gólfsíða glugga á flestum stöðum og aldrei séð rakamyndun í gluggum, allavega ekki útaf gólfhitanum. Stundum ef barnið er lengi í sturtu þá kemur smá móða inn á rúður.
13700K | Asus Z790 Prime| 32GB DDR5 | Zotac 4080 | 2TB 960 Pro m.2 | Corsair AX1200i | Fractal North | LG 34GN850-B
Synology DS1817+ | 20TB
USG | US-8-60W | nanoHD | Flex Mini
Synology DS1817+ | 20TB
USG | US-8-60W | nanoHD | Flex Mini
-
CendenZ
- Stjórnandi
- Póstar: 2925
- Skráði sig: Fös 04. Apr 2003 08:54
- Reputation: 228
- Staðsetning: Á þessu spjalli
- Staða: Ótengdur
Re: Gólfhiti - Reynslusögur, með eða á móti?
ZoRzEr skrifaði:.............hydrocork
Já Ég setti það niður fyrir 3 árum og ég held að þetta sé það herbergi sem við förum oftast í að leika, þótt það sé minnsta herbergið
Þetta ,,hljóð" sem er vanalega heima hjá manni, þótt maður sé með slökkt á öllum raftækjum, er einfaldlega ekki til staðar í herberginu
-
GullMoli
- Vaktari
- Póstar: 2521
- Skráði sig: Lau 20. Maí 2006 22:05
- Reputation: 242
- Staðsetning: NGC 3314.
- Staða: Ótengdur
Re: Gólfhiti - Reynslusögur, með eða á móti?
CendenZ skrifaði:Ég fékk ráðleggingar hjá einhverju fyrirtæki sem leggur gólfhita,
eitt sem kom mér verulega á óvart er að hann sagði að þeir væru hættir að fjarlægja ofna, nema við allra bestu aðstæðu í stofunni! Þannig allir ofnar enn í svefniherbergjum, forstofu, baði og þvottahúsi.... Ég hélt að með gólfhita þá væri ég að losna við þá, en nei það er ekki raunin. Ástæðan er eitthvað útaf raka í gluggum. Semsagt hitinn í gólfinu væru auka þægindi, ekki til að losna við ofna.
Ég nefnilega ætla að skipta um gólfefni og ofna sem er 30 ára gamalt þannig ég veit hvar þú ert staddur![]()
Hvaða gólfefni verður fyrir valinu, búinn að finna það ? Ég er mest spenntastur fyrir HydroCork vínilkork frá Þ Þorgríms, setti það í eitt barnaherbergið sem prufu þegar við fluttum og þetta er svaðalega gott efni, hljóðeinangrandi líka, maður finnur/skynjar hvað það drekkur í sig hljóð
Tengdó settu HydroCork frá Þ Þorgríms í nýja íbúð fyrir 2 árum. Virkilega auðvelt að setja niður og vinna með það. Hinsvegar hefur það verið endalaust vesen frá upphafi. Það er ekki gólfhiti, en íbúðin er hinsvegar ekki á jarðhæð heldur. Allur gólfflöturinn er sameiginlegur, nema baðherbergið.
Í stærsta rýminu, sem er ekki stórt (lítil stofa + eldhús), er gólfefnið að spennast upp og losna.
Upphaflega var undirlagið að krumpast saman í fellingar (hreyfing á gólfinu býst ég við). Ferlið hefur nokkurnvegin verið svona:
- Starfsmenn Þ Þorgríms hafa tekið gólfefnið og dúkinn upp í þessu rými, rakamælt steypuna (sem var OK), sett aftur niður. Vandamálið heldur áfram.
- Starfsmenn Þ Þorgríms vildu meina að stórar mublur fyrirbyggðu eðlilega hreyfingu á gólfinefninu, ok, þeir söguðu göt í gólfefnið og mublurnar standa á steypunni. Vandamálið heldur áfram.
- Starfsmenn Þ Þorgríms taka allt upp, líma undirlagið niður og setja gólfefnið aftur á. Vandamálið heldur áfram.
- Núna vilja þeir meina að þetta sé vegna þess að íbúðin er í hálfgerðu U lagi og að gangur sem liggur að stofunni valdi þessu. Næsta skref er að starfsmenn Þ Þorgrímsson ætla að líma gólfefnið niður... spennandi og æðislega mikið vesen.
Það ber þó á að nefna að í hvert skipti er vandamálið ekki jafn slæmt. Ég færi varlega í að leggja þetta þar sem gólflöturinn í öllu húsinu er sameiginlegur, þeas án þröskulda, miðað við þetta ævintýri.
Auðvitað halda þeir því fram að þetta hafi aldrei komið fyrir áður og hafa verið í samskiptum við framleiðandann um þetta vandamál.
Síðast breytt af GullMoli á Þri 04. Jan 2022 10:31, breytt samtals 2 sinnum.
Main -> || Windows 11 || Ryzen 5600x || Asus ROG B550i || 32GB DDR4 3600 || RTX 5070ti || CM 750W SFX || Lian Li TU-150 || 34" IPS 3440x1440 180Hz ||
NAS -> || Truenas Scale || i7 8700 || 64GB DDR4 2666 || 2x 12 TB ||
"It's a magical world, Hobbes, Ol' Buddy... let's go exploring!"
NAS -> || Truenas Scale || i7 8700 || 64GB DDR4 2666 || 2x 12 TB ||
"It's a magical world, Hobbes, Ol' Buddy... let's go exploring!"
-
Dr3dinn
- Tölvutryllir
- Póstar: 644
- Skráði sig: Mán 13. Ágú 2007 21:44
- Reputation: 106
- Staðsetning: Reykjavík
- Staða: Ótengdur
Re: Gólfhiti - Reynslusögur, með eða á móti?
Sælir.
Sko ég keypti mér hús með gólfhita byggt 2005. Miðað við sambærileg hús þá skylst mér að þetta sé ódýrara. (rekstrarlega)
Ókostir:
Þetta var ómerkt í skápnum (kostar 300þ) að fá pípara til að merkja þetta, reyndi að hækka og lækka herbergin og merkja sjálfur en það gekk ekki.
- þ.e.a.s þú vilt hafa misheit herbergi / svæði / hæðir (alveg hægt að hækka ákv svæði, en tekur oftast tíma, engar skyndiákvarðanir)
-ég er með sama hitastig um allt húsið, sem er ekki alveg hentugast gagnvart helvítis norðanáttinni.
Húsið er lengi að hitna, þ.e. ef það kemur skyndilega -8 gráður þá get ég ekki hækkað hitann strax tekur 1-2 daga að aðlaga allt húsið.
Ekkert upplifað raka eða kulda (nema skyndilega kólni úti), mjög fínt hitastig í húsinu og gólfihiti er alveg mega næs í eldhúsi/salernum.
Er að halda miklum hita í húsinu gegnum lagnirnar og það er enn alveg 25-30°sem fer út í planið af affallinu af gólfhitanum.
Loftið er þurrara með golfhita, erum með mæla og erum að lenda í 10-20% rakastigi sem telst vera mjög lágt.
Sko ég keypti mér hús með gólfhita byggt 2005. Miðað við sambærileg hús þá skylst mér að þetta sé ódýrara. (rekstrarlega)
Ókostir:
Þetta var ómerkt í skápnum (kostar 300þ) að fá pípara til að merkja þetta, reyndi að hækka og lækka herbergin og merkja sjálfur en það gekk ekki.
- þ.e.a.s þú vilt hafa misheit herbergi / svæði / hæðir (alveg hægt að hækka ákv svæði, en tekur oftast tíma, engar skyndiákvarðanir)
-ég er með sama hitastig um allt húsið, sem er ekki alveg hentugast gagnvart helvítis norðanáttinni.
Húsið er lengi að hitna, þ.e. ef það kemur skyndilega -8 gráður þá get ég ekki hækkað hitann strax tekur 1-2 daga að aðlaga allt húsið.
Ekkert upplifað raka eða kulda (nema skyndilega kólni úti), mjög fínt hitastig í húsinu og gólfihiti er alveg mega næs í eldhúsi/salernum.
Er að halda miklum hita í húsinu gegnum lagnirnar og það er enn alveg 25-30°sem fer út í planið af affallinu af gólfhitanum.
Loftið er þurrara með golfhita, erum með mæla og erum að lenda í 10-20% rakastigi sem telst vera mjög lágt.
Vélar
Leikja:Corsair Carbide 400C Clear - AMD 7800X3D - ASROCK b650 lightning - Samsung 990 1tb, Sabrent m.2 1TB, s 32GB(2x16 GB) 6000 MHz - ASRock Radeon RX 6900XT Phantom Gaming D 16GB -1x Odyssey G7 32, 240hz, 1ms, QHD 1440p
Vinnuvélin:Corsair Carbide 275R White - AMX 3900x -Samsung 1TB Pro-32GB (2x16 GB) 3400 MHz Corsair -2060 MSI Ventus 6 GB
Leikja:Corsair Carbide 400C Clear - AMD 7800X3D - ASROCK b650 lightning - Samsung 990 1tb, Sabrent m.2 1TB, s 32GB(2x16 GB) 6000 MHz - ASRock Radeon RX 6900XT Phantom Gaming D 16GB -1x Odyssey G7 32, 240hz, 1ms, QHD 1440p
Vinnuvélin:Corsair Carbide 275R White - AMX 3900x -Samsung 1TB Pro-32GB (2x16 GB) 3400 MHz Corsair -2060 MSI Ventus 6 GB
-
TheAdder
- vélbúnaðarpervert
- Póstar: 947
- Skráði sig: Mið 09. Des 2020 11:22
- Reputation: 254
- Staða: Ótengdur
Re: Gólfhiti - Reynslusögur, með eða á móti?
Ég er með gólfhita og enga ofna hjá mér í lítilli íbúð, alveg möst að vera með viftu/r til þess að hafa hreyfingu á loftinu og fyrirbyggja rakavandamál í gluggum.
Síðast breytt af TheAdder á Þri 04. Jan 2022 12:33, breytt samtals 1 sinni.
NZXT 710i - Ryzen 7 5800X - 32GiB 3200 M/T RAM - X570 Aorus Ultra - PowerColor Radeon RX 7900 XTX - 1TB Samsung 970 Pro, 2TB Samsung 970 Evo
Re: Gólfhiti - Reynslusögur, með eða á móti?
TheAdder skrifaði:Ég er með gólfhita og enga ofna hjá mér í lítillin íbúð, alveg möst að vera með viftu/r til þess að hafa hreyfingu á loftinu og fyrirbyggja rakavandamál í gluggum.
Góður punktur. Þarf að prófa þetta hjá mér.
-
ZoRzEr
- /dev/null
- Póstar: 1409
- Skráði sig: Þri 28. Apr 2009 12:11
- Reputation: 43
- Staðsetning: Reykjavík
- Staða: Ótengdur
Re: Gólfhiti - Reynslusögur, með eða á móti?
GullMoli skrifaði:CendenZ skrifaði:Ég fékk ráðleggingar hjá einhverju fyrirtæki sem leggur gólfhita,
eitt sem kom mér verulega á óvart er að hann sagði að þeir væru hættir að fjarlægja ofna, nema við allra bestu aðstæðu í stofunni! Þannig allir ofnar enn í svefniherbergjum, forstofu, baði og þvottahúsi.... Ég hélt að með gólfhita þá væri ég að losna við þá, en nei það er ekki raunin. Ástæðan er eitthvað útaf raka í gluggum. Semsagt hitinn í gólfinu væru auka þægindi, ekki til að losna við ofna.
Ég nefnilega ætla að skipta um gólfefni og ofna sem er 30 ára gamalt þannig ég veit hvar þú ert staddur![]()
Hvaða gólfefni verður fyrir valinu, búinn að finna það ? Ég er mest spenntastur fyrir HydroCork vínilkork frá Þ Þorgríms, setti það í eitt barnaherbergið sem prufu þegar við fluttum og þetta er svaðalega gott efni, hljóðeinangrandi líka, maður finnur/skynjar hvað það drekkur í sig hljóð
Tengdó settu HydroCork frá Þ Þorgríms í nýja íbúð fyrir 2 árum. Virkilega auðvelt að setja niður og vinna með það. Hinsvegar hefur það verið endalaust vesen frá upphafi. Það er ekki gólfhiti, en íbúðin er hinsvegar ekki á jarðhæð heldur. Allur gólfflöturinn er sameiginlegur, nema baðherbergið.
Í stærsta rýminu, sem er ekki stórt (lítil stofa + eldhús), er gólfefnið að spennast upp og losna.
Upphaflega var undirlagið að krumpast saman í fellingar (hreyfing á gólfinu býst ég við). Ferlið hefur nokkurnvegin verið svona:
- Starfsmenn Þ Þorgríms hafa tekið gólfefnið og dúkinn upp í þessu rými, rakamælt steypuna (sem var OK), sett aftur niður. Vandamálið heldur áfram.
- Starfsmenn Þ Þorgríms vildu meina að stórar mublur fyrirbyggðu eðlilega hreyfingu á gólfinefninu, ok, þeir söguðu göt í gólfefnið og mublurnar standa á steypunni. Vandamálið heldur áfram.
- Starfsmenn Þ Þorgríms taka allt upp, líma undirlagið niður og setja gólfefnið aftur á. Vandamálið heldur áfram.
- Núna vilja þeir meina að þetta sé vegna þess að íbúðin er í hálfgerðu U lagi og að gangur sem liggur að stofunni valdi þessu. Næsta skref er að starfsmenn Þ Þorgrímsson ætla að líma gólfefnið niður... spennandi og æðislega mikið vesen.
Það ber þó á að nefna að í hvert skipti er vandamálið ekki jafn slæmt. Ég færi varlega í að leggja þetta þar sem gólflöturinn í öllu húsinu er sameiginlegur, þeas án þröskulda, miðað við þetta ævintýri.
Auðvitað halda þeir því fram að þetta hafi aldrei komið fyrir áður og hafa verið í samskiptum við framleiðandann um þetta vandamál.
Þegar HydroCork fór niður hjá gömlu var undirlagið límt niður og svo tveim dögum seinna var sjálft gólfefnið límt niður á undirlagið. Hefur ekki haggast síðan. Fékk dúkalagningarmeistara til að leggja þetta, Hrafnkell hjá Öll Gólf ehf. Mæltu með honum hjá Þ Þorgrímssyni.
13700K | Asus Z790 Prime| 32GB DDR5 | Zotac 4080 | 2TB 960 Pro m.2 | Corsair AX1200i | Fractal North | LG 34GN850-B
Synology DS1817+ | 20TB
USG | US-8-60W | nanoHD | Flex Mini
Synology DS1817+ | 20TB
USG | US-8-60W | nanoHD | Flex Mini
Re: Gólfhiti - Reynslusögur, með eða á móti?
Ég var orðinn mjög spenntur að koma mér inní þessa umræðu þar sem ég er pípulagnamaður. En ég get fullyrt að það er búið að svara meira og minna öllu. Það er hvorki betra né verra að vera með gólfhita, algjört smekksatriði. Ofnar bregðast betur við hitabreytingum úti, en eru á móti, ljótir og plássfrekir. Gólfhiti bregst illa við hitabreytingum utandyra, en það eru til leiðir til að flýta fyrir sem eru samt sem áður kostnaðarsamar. Gólfhiti hitnar jafnara og er almennt betri hitagjafi en eins og komst til skila hér að ofan getur verið seint að svara (1-2 daga). En báðir möguleikarnir eru orðnir töluvert snjallari en þeir hafa verið, en sem tölvunarfræðingur líka þá skil ég ekki afhverju þeir eru ekki orðnir enn snjallari, ætti ekki að vera flókið fyrir gólfhitann að skoða veðurspá og bregðast við kuldabreytingum.
Persónulega mundi ég alltaf fá mér gólfhita. En það er samt ýmislegt sem þarf að hugsa útí. Á hvaða hæð ertu ? eru margir stórir gluggar ? er húsið vel einangrað ?
Persónulega mundi ég alltaf fá mér gólfhita. En það er samt ýmislegt sem þarf að hugsa útí. Á hvaða hæð ertu ? eru margir stórir gluggar ? er húsið vel einangrað ?
-
Klemmi
Höfundur - Stjórnandi
- Póstar: 4250
- Skráði sig: Fim 10. Apr 2003 12:16
- Reputation: 1441
- Staða: Ótengdur
Re: Gólfhiti - Reynslusögur, með eða á móti?
Takk kærlega, innilega og ítrekað fyrir öll svörin.
Ég var auðvitað að vona að öll svörin yrðu á þann veg að þetta væri no brainer, að allt væri betra við gólfhita og ég þyrfti ekkert að hugsa þetta neitt
Til að svara spurningunum, þá geri ég ráð fyrir að setja harðparket á venjulegu rýmin, en flísar á votrými. Við erum í einbýli á tveimur hæðum, og fyrsta hugsun var að setja bara gólfhita í allt, en núna er ég orðinn tvístígandi varðandi það eða gólfhita yfir höfuð.
Held að húsið sé ágætlega einangrað, góðar rúður og gluggar.
Á efri hæð eru 4 svefnherbergi, þar af eitt nýtt sem skrifstofa, ásamt aðal-baðherberginu.
Frá ykkur reynslumeiri mönnum, ætti ég þá bara að sleppa því að setja í svefnherbergin, en skella gólfhita á miðrýmið og baðherbergið?
Neðri hæðin er svo með frekar opið svæði, eldhús og stofur mynda hring, svo geymslubúr inn af eldhúsi. Einnig er þvottahús, anddyri og "gesta"klósett.
Frá ykkur reynslumeiri mönnum með sterkar skoðanir, ætti ég að setja gólfhita á allt niðri, nema þvottahús?
Það er ekki kostnaðurinn sem stoppar mig í því, heldur að mér vex smá í augum að taka það rými í gegn á sama tíma, þar sem ég myndi rífa gömlu flísarnar af og líklega henda út innréttingu... orðið talsvert auka maus, sem væri fínt að sleppa ef það er engin ástæða til að skella gólfhita þar.
Hvernig er með plássið undir stiganum, á ég að setja þar? Hvaða hæð þurfa vélarnar hjá verktökunum til þess að gera raufarnar, s.s. er of lágt undir stiga til að koma þeim að?
Enn og aftur, takk kærlega fyrir öll svörin, snilld að geta leitað hingað með svona spurningar
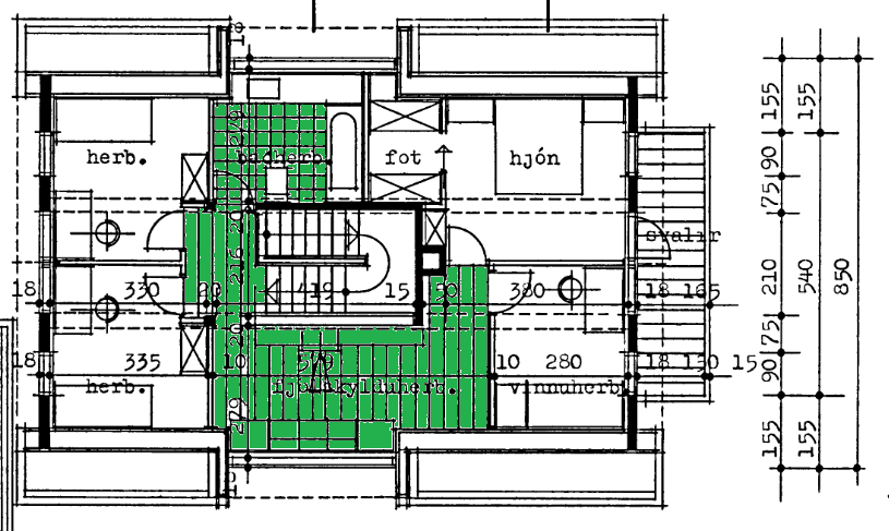
Læt hér fylgja gamlar teikningar, grænlitað það sem nýjustu hugmyndir eru um að setja gólfhita... smá hræddur samt um að ég endi á að hugsa að þetta sé of erfið ákvörðun, skipti bara um gólfefni og haldi áfram með líf mitt.
Ég var auðvitað að vona að öll svörin yrðu á þann veg að þetta væri no brainer, að allt væri betra við gólfhita og ég þyrfti ekkert að hugsa þetta neitt
Til að svara spurningunum, þá geri ég ráð fyrir að setja harðparket á venjulegu rýmin, en flísar á votrými. Við erum í einbýli á tveimur hæðum, og fyrsta hugsun var að setja bara gólfhita í allt, en núna er ég orðinn tvístígandi varðandi það eða gólfhita yfir höfuð.
Held að húsið sé ágætlega einangrað, góðar rúður og gluggar.
Á efri hæð eru 4 svefnherbergi, þar af eitt nýtt sem skrifstofa, ásamt aðal-baðherberginu.
Frá ykkur reynslumeiri mönnum, ætti ég þá bara að sleppa því að setja í svefnherbergin, en skella gólfhita á miðrýmið og baðherbergið?
Neðri hæðin er svo með frekar opið svæði, eldhús og stofur mynda hring, svo geymslubúr inn af eldhúsi. Einnig er þvottahús, anddyri og "gesta"klósett.
Frá ykkur reynslumeiri mönnum með sterkar skoðanir, ætti ég að setja gólfhita á allt niðri, nema þvottahús?
Það er ekki kostnaðurinn sem stoppar mig í því, heldur að mér vex smá í augum að taka það rými í gegn á sama tíma, þar sem ég myndi rífa gömlu flísarnar af og líklega henda út innréttingu... orðið talsvert auka maus, sem væri fínt að sleppa ef það er engin ástæða til að skella gólfhita þar.
Hvernig er með plássið undir stiganum, á ég að setja þar? Hvaða hæð þurfa vélarnar hjá verktökunum til þess að gera raufarnar, s.s. er of lágt undir stiga til að koma þeim að?
Enn og aftur, takk kærlega fyrir öll svörin, snilld að geta leitað hingað með svona spurningar
Læt hér fylgja gamlar teikningar, grænlitað það sem nýjustu hugmyndir eru um að setja gólfhita... smá hræddur samt um að ég endi á að hugsa að þetta sé of erfið ákvörðun, skipti bara um gólfefni og haldi áfram með líf mitt.
Starfsmaður Tölvutækni.is
-
jagermeister
- spjallið.is
- Póstar: 498
- Skráði sig: Mán 16. Mar 2009 16:25
- Reputation: 5
- Staða: Ótengdur
Re: Gólfhiti - Reynslusögur, með eða á móti?
Klemmi skrifaði:Hvernig er með plássið undir stiganum, á ég að setja þar? Hvaða hæð þurfa vélarnar hjá verktökunum til þess að gera raufarnar, s.s. er of lágt undir stiga til að koma þeim að?
Hringás selur Flooré gólfhitakerfi, sleppur þannig við að fræsa ef það er eitthvað sem er að hræða þig.
Re: Gólfhiti - Reynslusögur, með eða á móti?
Klemmi skrifaði:Takk kærlega, innilega og ítrekað fyrir öll svörin.
Ég var auðvitað að vona að öll svörin yrðu á þann veg að þetta væri no brainer, að allt væri betra við gólfhita og ég þyrfti ekkert að hugsa þetta neitt
Til að svara spurningunum, þá geri ég ráð fyrir að setja harðparket á venjulegu rýmin, en flísar á votrými. Við erum í einbýli á tveimur hæðum, og fyrsta hugsun var að setja bara gólfhita í allt, en núna er ég orðinn tvístígandi varðandi það eða gólfhita yfir höfuð.
Held að húsið sé ágætlega einangrað, góðar rúður og gluggar.
Á efri hæð eru 4 svefnherbergi, þar af eitt nýtt sem skrifstofa, ásamt aðal-baðherberginu.
Frá ykkur reynslumeiri mönnum, ætti ég þá bara að sleppa því að setja í svefnherbergin, en skella gólfhita á miðrýmið og baðherbergið?
Neðri hæðin er svo með frekar opið svæði, eldhús og stofur mynda hring, svo geymslubúr inn af eldhúsi. Einnig er þvottahús, anddyri og "gesta"klósett.
Frá ykkur reynslumeiri mönnum með sterkar skoðanir, ætti ég að setja gólfhita á allt niðri, nema þvottahús?
Það er ekki kostnaðurinn sem stoppar mig í því, heldur að mér vex smá í augum að taka það rými í gegn á sama tíma, þar sem ég myndi rífa gömlu flísarnar af og líklega henda út innréttingu... orðið talsvert auka maus, sem væri fínt að sleppa ef það er engin ástæða til að skella gólfhita þar.
Hvernig er með plássið undir stiganum, á ég að setja þar? Hvaða hæð þurfa vélarnar hjá verktökunum til þess að gera raufarnar, s.s. er of lágt undir stiga til að koma þeim að?
Enn og aftur, takk kærlega fyrir öll svörin, snilld að geta leitað hingað með svona spurningar![]()
Læt hér fylgja gamlar teikningar, grænlitað það sem nýjustu hugmyndir eru um að setja gólfhita... smá hræddur samt um að ég endi á að hugsa að þetta sé of erfið ákvörðun, skipti bara um gólfefni og haldi áfram með líf mitt.
neðri.png
efri.png
Sleppa gólfhita uppi. Málið er að í raun má ekki setja gólfhita í fjölbýlishús nema að einangra undir gólfhitann(til fínar lausnir frá hringas frá floore http://hringas.is/index.php?page=shop.browse&category_id=26&option=com_virtuemart&Itemid=1). Með því að setja gólfhita á 2.hæð ertu að hita upp plötuna fyrir 1.hæðina, hitinn getur svo leitað niður og gert upphitunina á hæðinni fyrir neðan óþægilega. Einfalt.
Færð þér Danfoss ally kerfi sem virkar bæði og hægt að tengja saman gólfhita og ofnloka.
2.hæð
Setur danfoss ally túrloka á ofna.
1.hæð
Gólfhiti á allt með danfoss Icon.
Notar svo ECL stöð frá danfoss til að fylgjast með útihita þannig að kerfið bregst hraðar við útihitabreytingum.
Þarft ekki gólfhita undir stiga nema þú viljir það sérstaklega.
-
mainman
- Vélbúnaðarníðingur
- Póstar: 392
- Skráði sig: Sun 08. Jan 2006 15:40
- Reputation: 85
- Staða: Ótengdur
Re: Gólfhiti - Reynslusögur, með eða á móti?
Ég er með 210 fermetra hús á einni hæð byggt 2009 og það er enginn ofn í öllu húsinu.
Það eru digital stillar og skynjarar í hverju herbergi og hægt að stilla hvert herbergi fyrir sig.
Tók mig nokkra mánuði að fínstilla hitagrindina hjá mér en eftir það var þetta æðislegt.
Alltaf rétt hitastig í öllum herbergjum og jafn hiti allstaðar og kerfið er mjög fljótt að taka við sér ef það kólnar.
Ég er með um 5.5 metra lofthæð hjá mér og ég átti von á að það mundi verða rosalega heitt upp undir lofti en það virðist ekki vera og ég sé hitann í snjall reykskynjurunum sem ég er með í öllum herbergjum.
Það eru flísar í stæðstu rýmunum en parket í herbergjum og þetta virkar alveg jafn vel í þeim.
Heitavatnsreikningurinn er ekki nema um 7500-8000 á mánuði svo þetta nýtir hitann svaka vel.
Vatnið sem fer út er 19-22 gráður og það er góð núting finnst mér.
Ég hellulagði planið hjá mér í fyrra og setti þá hita í planið og nota affallið í það og bætti við innspýtingu á það ef það skyldi frjósa hraustlega en ég hef haft lokað fyrir innspýtinguna enn sem komið er og ég er að fá 4-5 gráður aftur inn í hús eftir grind í veðri eins og núna.
Eina sem þarf að passa sig á ef þú notar affallið fyrir plan er að þegar öll herbergi eru orðin heit þá lokast fyrir allt flæði og þá er ekki neitt að renna í planið kanski í marga klukkutíma og þá gæti hæglega frosið svo ég er með einn Shelly sem kveikir automatic á blæðingunni ef hitinn á affallinu fer niður í 0 gráður.
Að öðtu leiti finn ég enga ókosti við gólfhita.
Það eru digital stillar og skynjarar í hverju herbergi og hægt að stilla hvert herbergi fyrir sig.
Tók mig nokkra mánuði að fínstilla hitagrindina hjá mér en eftir það var þetta æðislegt.
Alltaf rétt hitastig í öllum herbergjum og jafn hiti allstaðar og kerfið er mjög fljótt að taka við sér ef það kólnar.
Ég er með um 5.5 metra lofthæð hjá mér og ég átti von á að það mundi verða rosalega heitt upp undir lofti en það virðist ekki vera og ég sé hitann í snjall reykskynjurunum sem ég er með í öllum herbergjum.
Það eru flísar í stæðstu rýmunum en parket í herbergjum og þetta virkar alveg jafn vel í þeim.
Heitavatnsreikningurinn er ekki nema um 7500-8000 á mánuði svo þetta nýtir hitann svaka vel.
Vatnið sem fer út er 19-22 gráður og það er góð núting finnst mér.
Ég hellulagði planið hjá mér í fyrra og setti þá hita í planið og nota affallið í það og bætti við innspýtingu á það ef það skyldi frjósa hraustlega en ég hef haft lokað fyrir innspýtinguna enn sem komið er og ég er að fá 4-5 gráður aftur inn í hús eftir grind í veðri eins og núna.
Eina sem þarf að passa sig á ef þú notar affallið fyrir plan er að þegar öll herbergi eru orðin heit þá lokast fyrir allt flæði og þá er ekki neitt að renna í planið kanski í marga klukkutíma og þá gæti hæglega frosið svo ég er með einn Shelly sem kveikir automatic á blæðingunni ef hitinn á affallinu fer niður í 0 gráður.
Að öðtu leiti finn ég enga ókosti við gólfhita.
-
TheAdder
- vélbúnaðarpervert
- Póstar: 947
- Skráði sig: Mið 09. Des 2020 11:22
- Reputation: 254
- Staða: Ótengdur
Re: Gólfhiti - Reynslusögur, með eða á móti?
mainman skrifaði:Ég er með 210 fermetra hús á einni hæð byggt 2009 og það er enginn ofn í öllu húsinu.
Það eru digital stillar og skynjarar í hverju herbergi og hægt að stilla hvert herbergi fyrir sig.
Tók mig nokkra mánuði að fínstilla hitagrindina hjá mér en eftir það var þetta æðislegt.
Alltaf rétt hitastig í öllum herbergjum og jafn hiti allstaðar og kerfið er mjög fljótt að taka við sér ef það kólnar.
Ég er með um 5.5 metra lofthæð hjá mér og ég átti von á að það mundi verða rosalega heitt upp undir lofti en það virðist ekki vera og ég sé hitann í snjall reykskynjurunum sem ég er með í öllum herbergjum.
Það eru flísar í stæðstu rýmunum en parket í herbergjum og þetta virkar alveg jafn vel í þeim.
Heitavatnsreikningurinn er ekki nema um 7500-8000 á mánuði svo þetta nýtir hitann svaka vel.
Vatnið sem fer út er 19-22 gráður og það er góð núting finnst mér.
Ég hellulagði planið hjá mér í fyrra og setti þá hita í planið og nota affallið í það og bætti við innspýtingu á það ef það skyldi frjósa hraustlega en ég hef haft lokað fyrir innspýtinguna enn sem komið er og ég er að fá 4-5 gráður aftur inn í hús eftir grind í veðri eins og núna.
Eina sem þarf að passa sig á ef þú notar affallið fyrir plan er að þegar öll herbergi eru orðin heit þá lokast fyrir allt flæði og þá er ekki neitt að renna í planið kanski í marga klukkutíma og þá gæti hæglega frosið svo ég er með einn Shelly sem kveikir automatic á blæðingunni ef hitinn á affallinu fer niður í 0 gráður.
Að öðtu leiti finn ég enga ókosti við gólfhita.
Ég mæli með einn breytingu hjá þér, setja lokað kerfi í planið með glýkoli og varmaskipti á það inn í húsi. Þá þarftu ekki að hafa áhyggjur af að frjósi í planinu.
NZXT 710i - Ryzen 7 5800X - 32GiB 3200 M/T RAM - X570 Aorus Ultra - PowerColor Radeon RX 7900 XTX - 1TB Samsung 970 Pro, 2TB Samsung 970 Evo
-
SolidFeather
- Vaktari
- Póstar: 2753
- Skráði sig: Mán 15. Des 2003 21:11
- Reputation: 166
- Staða: Ótengdur
-
Klemmi
Höfundur - Stjórnandi
- Póstar: 4250
- Skráði sig: Fim 10. Apr 2003 12:16
- Reputation: 1441
- Staða: Ótengdur
Re: Gólfhiti - Reynslusögur, með eða á móti?
hivsteini skrifaði:Sleppa gólfhita uppi.
...
2.hæð
Setur danfoss ally túrloka á ofna.
1.hæð
Gólfhiti á allt með danfoss Icon.
Notar svo ECL stöð frá danfoss til að fylgjast með útihita þannig að kerfið bregst hraðar við útihitabreytingum.
...
Þarft ekki gólfhita undir stiga nema þú viljir það sérstaklega.
Takk kærlega fyrir þessar ráðleggingar, eftir alla umræðuna hér finnst mér mjög líklegt að lendingin verði að sleppa gólfhita á 2. hæð, en setja á alla 1. hæð.
Finn að mér þykir líka léttara að hugsa til þess, þá get ég dundað mér við að skipta út gólfefninu hér uppi án þess að þurfa að færa allt niður fyrst fyrir fræsinguna. Reyni svo bara að plata gólfhitakarlana til að koma á einhverjum góðviðrisdegi svo ég geti hent sófunum bara út á meðan neðri hæðin er fræst.
mainman skrifaði:Ég er með 210 fermetra hús á einni hæð byggt 2009 og það er enginn ofn í öllu húsinu.
Það eru digital stillar og skynjarar í hverju herbergi og hægt að stilla hvert herbergi fyrir sig.
Tók mig nokkra mánuði að fínstilla hitagrindina hjá mér en eftir það var þetta æðislegt.
Alltaf rétt hitastig í öllum herbergjum og jafn hiti allstaðar og kerfið er mjög fljótt að taka við sér ef það kólnar.
Ég er með um 5.5 metra lofthæð hjá mér og ég átti von á að það mundi verða rosalega heitt upp undir lofti en það virðist ekki vera og ég sé hitann í snjall reykskynjurunum sem ég er með í öllum herbergjum.
Það eru flísar í stæðstu rýmunum en parket í herbergjum og þetta virkar alveg jafn vel í þeim.
Heitavatnsreikningurinn er ekki nema um 7500-8000 á mánuði svo þetta nýtir hitann svaka vel.
Vatnið sem fer út er 19-22 gráður og það er góð núting finnst mér.
.
Úffff, það er líka eitt sem ég var að vona til að sjá með gólfhitanum, hvort við förum að nota minna af heitu vatni. Ég er að borga um 20þús á mánuði fyrir heita vatnið, þrátt fyrir að húsið mitt sé líklega helmingi minna að rúmmáli en þitt.
Reyndar breyttum við bílskúrnum í íbúð, og hún er í leigu, sem hefur einhver áhrif, en það var samt talsvert mikil heitavatnsnotkun hjá okkur áður en bílskúrinn fór í útleigu.
Búinn að prófa að þreifa og hlusta á öllum ofnum, og þeir eru heitir efst og frekar kaldir neðst, svo ég veit ekki alveg hvað veldur
Fékk pípara í heimsókn í fyrra og hann fann heldur ekkert óeðlilegt, og fannst þessi vatnsnotkun vera innan marka, þó hún væri í hærra lagi.
Starfsmaður Tölvutækni.is
-
urban
- Stjórnandi
- Póstar: 3750
- Skráði sig: Mán 06. Des 2004 01:26
- Reputation: 474
- Staðsetning: Undir hægra megin
- Hafðu samband:
- Staða: Ótengdur
Re: Gólfhiti - Reynslusögur, með eða á móti?
Klemmi skrifaði:Úffff, það er líka eitt sem ég var að vona til að sjá með gólfhitanum, hvort við förum að nota minna af heitu vatni. Ég er að borga um 20þús á mánuði fyrir heita vatnið, þrátt fyrir að húsið mitt sé líklega helmingi minna að rúmmáli en þitt.
Reyndar breyttum við bílskúrnum í íbúð, og hún er í leigu, sem hefur einhver áhrif, en það var samt talsvert mikil heitavatnsnotkun hjá okkur áður en bílskúrinn fór í útleigu.
Búinn að prófa að þreifa og hlusta á öllum ofnum, og þeir eru heitir efst og frekar kaldir neðst, svo ég veit ekki alveg hvað veldur
Fékk pípara í heimsókn í fyrra og hann fann heldur ekkert óeðlilegt, og fannst þessi vatnsnotkun vera innan marka, þó hún væri í hærra lagi.
Hvað eru margir í heimili ?
Langar sturtur ?
Ég myndi reikna þetta út vel og lengi áður en þú ferð að spá í því hvort að þú hagnist eitthvað á þessu, þrátt fyrir að þú náir 50% sparnaði þá væriru fjöldamörg ár að spara á þessu.
Eru gluggar hjá þér gamlir ?
Hvernig er einangrun í lofti ?
bráðnar snjór af þakinu hjá þér ?
Síðan myndi ég skoða mjög vel aðrar leiðir en að fræsa í gólfin, frekar leiðin sem jagermeister kom með, það geturu lagt sjálfur að stórum hluta og sleppur við fræsingu, hún er algert horror.
Síðast breytt af urban á Þri 04. Jan 2022 22:52, breytt samtals 1 sinni.
Heyrðu þú ert bara alls ekkert svo óvitlaus !
Re: Gólfhiti - Reynslusögur, með eða á móti?
Klemmi skrifaði:
Hvernig er með plássið undir stiganum, á ég að setja þar? Hvaða hæð þurfa vélarnar hjá verktökunum til þess að gera raufarnar, s.s. er of lágt undir stiga til að koma þeim að?
Fræsarinn er svona ca. mittishár þannig að hann kemst ekki undir neðstu þrepin í stiganum. Það er annað hvort hægt að sleppa því að leggja hita undir neðstu þrepin eða fræsa með t.d. slípirokk.